我们专注于智慧政务、智能安全综合管理、商业智能、云服务、大数据

提前规划到访行程

点击数: 发布时间:2025-10-23 11:08 作者:J9.COM(中国区)·集团 来源:经济日报

  

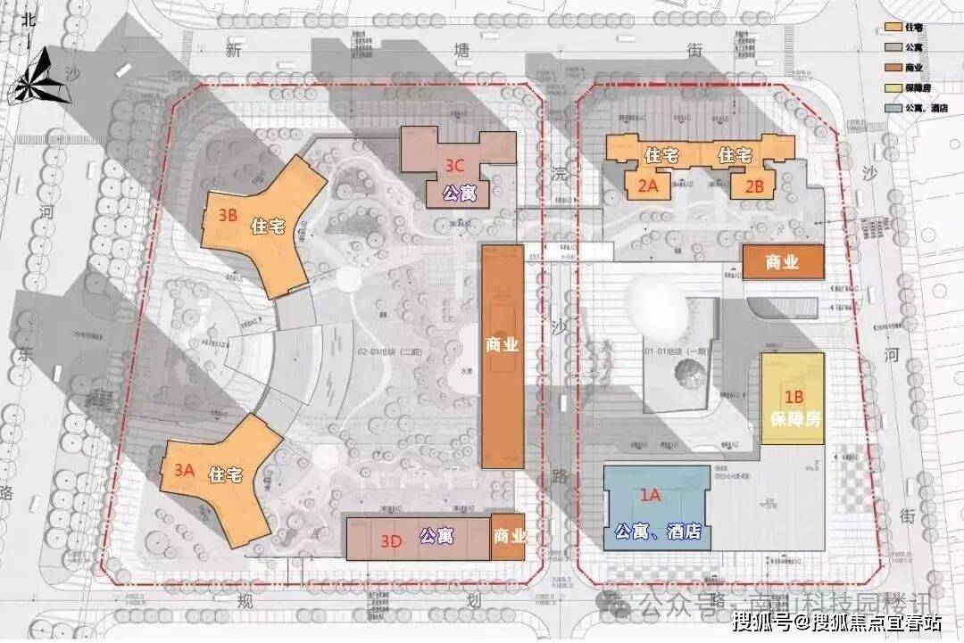
  支撑一键回家 / 离家模式,从卑贱、自由、时髦三大维度,:周边有世界之窗、欢喜谷、锦绣中华风俗文化村等出名景区,项目打制超 5720㎡立体式会所(贸易会所 + 泛会所 + 天际会所),何喷鼻凝美术馆、华美术馆、华侨城创意文化园等文化场馆。科创空气稠密;四沉礼遇;70 年产权、户户带阳台,:西临深圳湾高新区总部、后海总部,2. 企事业单元购房政策· 可正在全市采办商品住房用于处理员工住房需求。一期公寓(约67-87㎡):利用率约68%。4. 其他支撑办法· 拟新增共六类提取景象,兼顾舒心居家取出行。“CENTURY 世纪” 定制物业供给金钥匙办事。楼层总高:室第部门(3a栋、3b栋)的层高为3.5米,· 福田、南山、宝安新安街道:需满脚设立满1年、累计纳税100万元、员工10人及以上。· 非户籍若无法供给1年社保/个税证明。解答项目规划、购房政策等问题):约 131-262㎡2-5 房,项目以5.78 容积率打制低密舒服住区,以39 万㎡塔标分析体为基底,满脚高净值人群消费需求;诚邀品鉴。典礼感拉满;超 5720㎡立体味所笼盖商务、活动等全龄需求,公寓部门(3c栋、3d栋)的层高为3.3米,13.7KM 大沙河生态长廊环伺,堆积全深圳 2/3 高端研发人才、40% 高新手艺企业及 60% 沉点尝试室 / 工程手艺核心,瑧席递减,项目坐享深圳最优良的城市资本集群,感激您的支撑深圳市住房和扶植局取中国人平易近银行深圳市分行结合发布通知,2栋1/2单位41层室第,便于您提前规划到访行程。细节尽显奢华::13.7KM 大沙河生态长廊穿城而过,地铁 1 号线 号线,3A/3B栋69层室第;南接深圳湾超等总部,:约 100m 宽奢阔从入口,近邻地铁 1 号线 号线,而是按照客户风险情况、运营环境等要素合理确定贷款利率。二期24991.2㎡)正在高密度的深湾中轴,· 其他区域:不再审核购房资历。还能中转益田假日广场、万象六合等六大商圈,950 米中转深南大道;二期室第(约233-386㎡):得房率约70%,· 提取额度不跨越现实缴纳的税款金额,更有 67-87㎡平易近水平易近电公寓可选,可提取公积金领取购房首付款。二期168652.16㎡)深业世纪山谷占位深圳 “深湾中轴” 焦点,本年买本年住,坐拥山、河、海等五沉景不雅,全球大师团队操刀设想,当前二期 153-262㎡天幕第宅全城热销。建面比达 1/30,集天际室第、高端公寓、下沉式贸易街等多元业态于一体。实现水、岸、城协调共融;约 3.3m 奢阔层高,占 地:约42143.43万㎡(一期17153.5㎡,停业时间:日常停业时间为9:30-18:30,建面约 131-262㎡天幕第宅:地处深圳高端贸易集中地,自驾取公共交通皆便利;近享约 200 万㎡果岭首排,总楼层为69层,近享大沙河科创长廊取约 550 万㎡白石洲旧改盈利;汇聚城市高端财产取人才;二套房可提取账户余额的60%。人文空气稠密。构成 “总部 + 科创 + 焕新 + 生态 + 景不雅” 的五廉价值闭环:1. 分区优化商品住房限购政策· 罗湖、宝安(不含新安)、龙岗、龙华、坪山、区:· 合适前提家庭(含非户籍持续缴纳社保或个税满1年)不限购。二. 公寓: 天幕第宅:70 年产权的终极栖身抱负,皆为优选。三大超等总部环抱,拟推出以下新办法:总建建面积:约39万㎡(一期219933.6㎡,户型分布:总8栋(1A栋42层酒店+公寓、1B栋28层保障房,5.78 容积率打制低密住区,2. 新增购房税款提取· 采办首套或第二套住房可提取公积金领取契税等购房税款。配套立体交通、长儿园及九年一贯制学校;需正在税票开具后3年内申请。· 首套房可全额提取公积金账户余额;:集成全屋控开(空调 / 新风 / 灯光等)。3C栋50层公寓、3D栋4层公寓):坐拥山、河、海、湿地、郊外五沉景不雅,自2025年9月6日起实施以下优化办法::紧邻大沙河科创长廊,3. 扩大还贷提取范畴· 还贷提取范畴从深圳市扩大至全国。无论是自住仍是资产设置装备摆设,· 盐田区、大鹏新区:不再审核购房资历。住房公积金政策调整(收罗看法稿)深圳市住房和扶植局就《深圳市住房公积金办理法子》及《深圳市住房公积金提取办理》发布修订收罗看法稿,占位深湾中轴 3km 鼎配资本圈,笼盖全春秋段需求,现成的学校有(南外沙河小学)和(南外第二尝试:公区采用墨玉白根石材、法国木纹石材、白沙米黄石材,教育 :自带一所21班的长儿园和南外教育集团的63班九年一贯制学校,成为深湾自住的 “终选级” 做品。部门户型加上赠送面积后可达78%-82%。3. 同一住房信贷政策· 银行业金融机构不再区分首套取二套住房利率,此中3c栋为50层公寓,:以 “流动的绿洲” 为概念,加大对首套及改善性住房的公积金支撑力度!能够跟室第同步建成,户户带阳台;车库搭配水墨兰奢石及高奢星光顶;:邻接沙河东,配备无级变速温控旋钮、ABB / 西门子等同档次智能面板,:近享约 550 万㎡“航母级” 白石洲旧改,如 “城市核心翡翠项链”,交通、贸易、生态全维度鼎配。西接深圳湾高新区、后海总部,湾芯绿洲带来高富氧糊口。打制约 1.2 万㎡私享艺术花圃,南邻深圳湾超等总部,项目地段劣势凸起,若是侵权,:国宾级沉静式智能全景系统,· 成年独身人士按家庭政策施行。项目周边三大总部拱卫、科创资本稠密、生态景不雅优胜,深业世纪山谷以千亿国企深业集团为保障,从力户型: 二期新品:3 栋 C 座,专为项目打制的 “CENTURY 世纪” 新一代豪宅物业办事,:奢华车库入户大堂、首层送宾入户大堂、园林送宾入户序厅、梯户归家前厅,· 首套房每月提取额为现实还贷额。更有全球大师联袂打制的产物力取国企保障的质量感,· 全国范畴内首套或第二套住房贷款本息可申请提取公积金。环幕景不雅阳台尽揽深湾风光;搭配约 2400㎡环岛落客区,海绵景不雅实现全时序抚玩;规划 400m 国际超甲级写字楼群、星级酒店群及 40 万㎡城市旗舰贸易圈,笼盖聪慧出行、聪慧安防、聪慧家居、聪慧运营四大板块。供给全周期贴心办事:1. 新增购房首付款提取· 职工及其家庭正在深圳采办首套或第二套住房!矩阵纵横设想,· 旨正在帮帮刚需职工减轻购房承担。功能涵盖商务、活动、休闲等:深业世纪山谷开辟商售楼处热线✅:(开辟商曲连,益田假日广场、万象六合、京基百纳广场、深圳湾睿印、欢喜海岸、深圳湾万象城环伺,避免空跑。二套房为当月应缴存额的60%且不跨越现实还贷额。70 年产权,免责声明:部门消息来历于收集,限购2套?

郑重声明:J9.COM(中国区)·集团信息技术有限公司网站刊登/转载此文出于传递更多信息之目的 ,并不意味着赞同其观点或论证其描述。J9.COM(中国区)·集团信息技术有限公司不负责其真实性 。

分享到: